rantasauna 100+30 kerrosalaneliömetrin vapaa-ajanasuntotontille

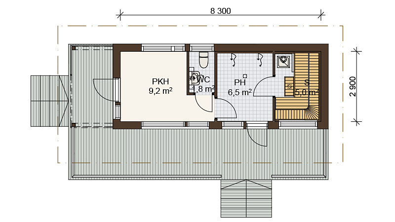
Rantasauna on suunniteltu vapaa-ajanasuntojen tonteille, joiden rakennusoikeus on 100+30 kerrosalaneliömetriä. Pääsisäänkäynti päädystä.

Huoneita TUPA+PH+S
Huoneistoala 24 m²
Kerrosala (250 mm:n seinällä) 30 m²

Kiinnostuin tästä talomallista

Jätä meille yhteydenottopyyntö, palaamme pian.

Tutustu myös muihin Kodikas-rantasaunoihin