Kodikas-talopaketit / kodikas 180

tilava ja yksilöllinen koti rauhaa rakastavalle perheelle

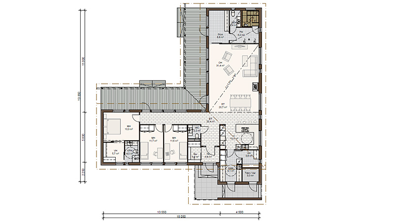
Tilava ja yksilöllinen ratkaisu perheelle, joka arvostaa sekä yhteistä aikaa että omaa rauhaa. Asumisen eri toiminnot on jaoteltu selkeästi omiin siipiinsä. Talomalli on muunnelma Tampereen asuntomessuille toteuttamastamme Estellestä.

Huoneita 4H+K+S
Huoneistoala 180 m²
Kerrosala 207 m²

Kiinnostuin tästä talomallista

Jätä meille yhteydenottopyyntö, palaamme pian.

Tutustu myös muihin 1-kerroksisiin puutaloihin