Kodikas-talopaketit / kodikas 158 b

muuntautuu monipuolisesti erilaisiin toiveisiin

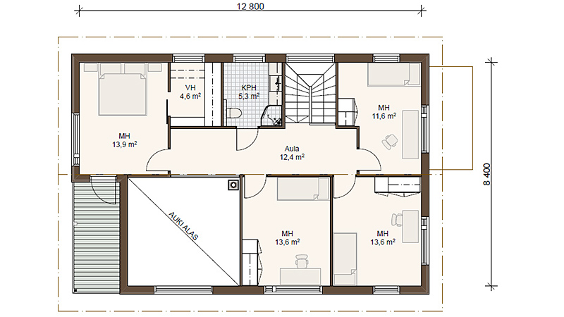
Kodikas 158 B muuntautuu monipuolisesti erilaisten tilantarpeiden, kaavamääräysten ja mieltymysten mukaan. Tutustu myös yläkerran osalta varioituihin 158 A- ja 158 C -versioihin.

Huoneita 6H+K+S
Huoneistoala 176 m²
Kerrosala 205 m²

Kiinnostuin tästä talomallista

Jätä meille yhteydenottopyyntö, palaamme pian.

Tutustu myös muihin 2-kerroksisiin puutaloihin